SM Mensroom

PROJECT STATUS: 2022

SIZE: 120 M2

LOCATION: Radovljica

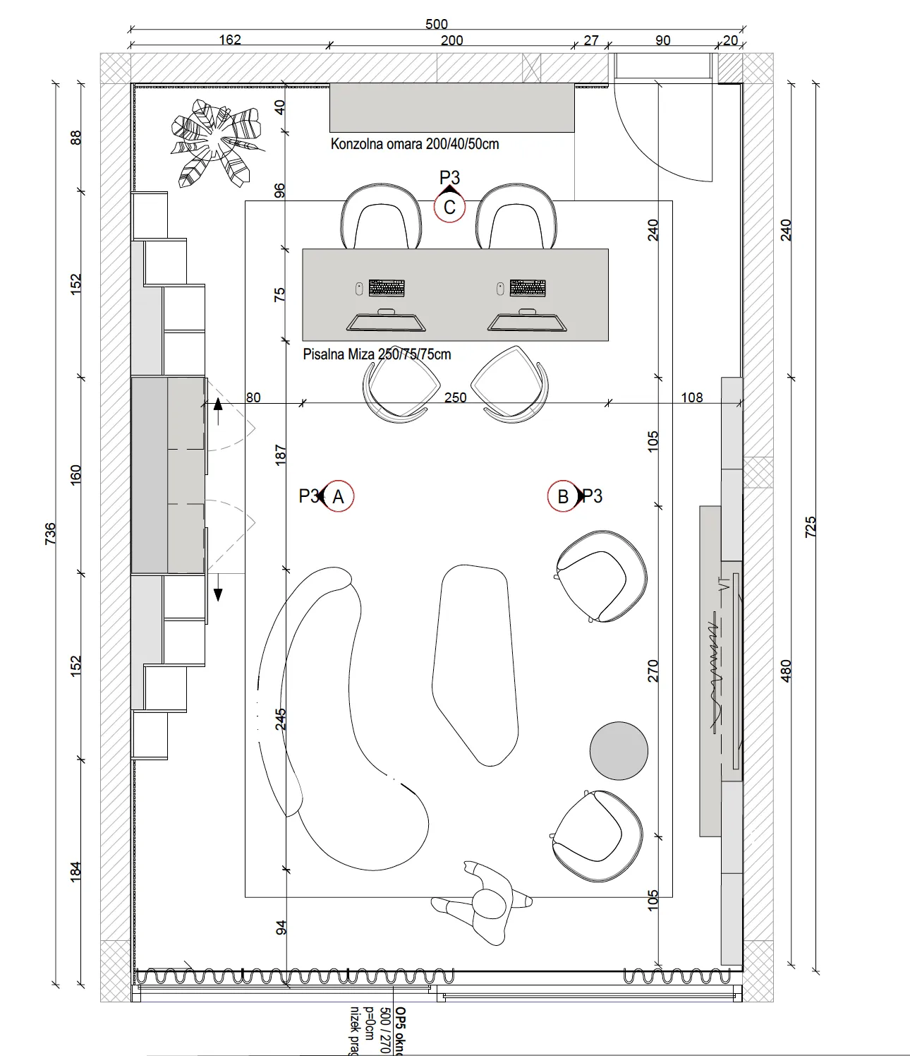
Modern luxury home office interior with curved white sofa, dark wood paneling, statement artwork, and designer lighting – elegant contemporary workspace design.Built-in luxury home bar with marble shelves, gold mesh sliding doors, premium liquor collection, and backlit display in modern living space.Architectural floor plan of a contemporary office and lounge space featuring workstation layout, custom furniture dimensions, and room measurements.